Product 1

Vertical Patient Transport Solutions

Model: FE-H06

Configurations:

Ceiling: Hairline stainless steel, acrylic, LED light
Cabin Wall: Hairline stainless steel
Cabin Door: Hairline stainless steel
Handrail:  Stainless steel flat armrest
Floor: PVC

Catalog Send Inquiry

Product Details


Vertical Patient Transport Solutions

Configurations:

Ceiling: Hairline stainless steel, acrylic, LED light
Cabin Wall: Hairline stainless steel
Cabin Door: Hairline stainless steel
Handrail:  Stainless steel flat armrest
Floor: PVC

 

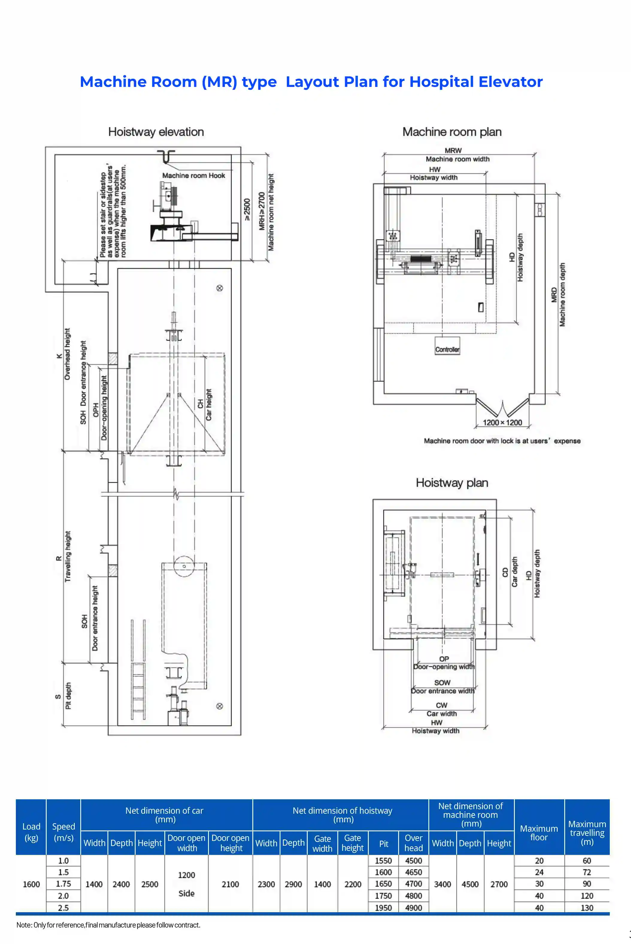
Drawings & Parameters:

 

Relevant products


Send Inquiry


×
WhatsApp QR Code
WhatsApp
WeChat QR Code
WeChat