Product 1

luxurious Silver Passenger Elevators

Model: FE-C20

Configurations:

Car celling: Mirror stainless steel frame, acrylic transparent plate, LED lights 
Car wall: Mirror, etching, hairline
Handrail: Stainless steel round handrail
Floor: Standard pvc (oplional marble) 




Catalog Send Inquiry

Product Details


Configurations:

Car celling: Mirror stainless steel frame, acrylic transparent plate, LED lights 
Car wall: Mirror, etching, hairline
Handrail: Stainless steel round handrail
Floor: Standard pvc (oplional marble) 

Building-Specific Solutions

Residential Buildings
Compact MRL (Machine-Room-Less) elevators feature:

  • Space-saving designs requiring minimal pit depth (100mm)

  • Whisper-quiet operation (<45dB) ideal for homes

  • 250-450kg weight capacity (3-6 persons)

  • Battery backups for power outages

Commercial Buildings
High-traffic solutions include:

  • 630-1600kg weight capacity for offices/malls

  • Touchless controls with UV-C sanitation

  • Destination dispatch (30% faster transit times)

  • 40% reduced energy consumption via regenerative drives

High-Rise Buildings
Engineered for skyscrapers:

  • Speeds up to 10m/s with pressurized cabins

  • Twin-car systems in single shafts

  • 2000-5000kg weight capacity

  • AI traffic management during peak hours

Weight Capacity Engineering

Capacity is scientifically calculated using:

  1. Average passenger weight (75kg) + 25% safety buffer

  2. Dynamic load analysis during acceleration/deceleration

  3. Redundant cable systems (each supports 12x full load)

Building Type Weight Capacity Person Capacity
Residential 250-450kg 3-6
Mid-Rise Commercial 630-1000kg 8-13
High-Rise 1600-5000kg 21-67

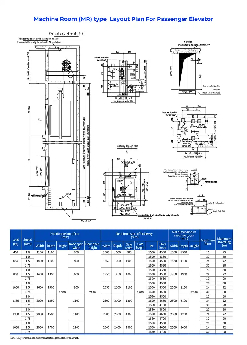
Drawings & Parameters:

 

Relevant products


Send Inquiry


×
WhatsApp QR Code
WhatsApp
WeChat QR Code
WeChat